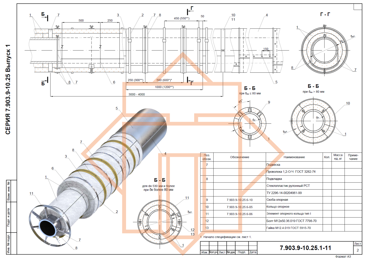
В серии реализовано много нового, а именно :
- Конструкции тепловой изоляции дополнены 3D-визуализациями
- Появился новый раздел "Комплектующие изделия и защитные покрытия трубопроводов"
- Появился новый раздел "Системы электрообогрева трубопроводов"
- Материалы в серии гармонизированы с расчетной программой Изоляция НТП Трубопровод.
- Дополнены и проработаны актуальные теплоизоляционные материалы и конструкции на их основе.







