1. Главная
  2. Блог
  3. Альбомы технических решений
  4. Выпущена новая типовая серия 1.036.5-3.17 "Двери межкомнатные интерьерные противопожарные "ЛД-Огнеспас" из древесины и древесных материалов для общественных зданий"

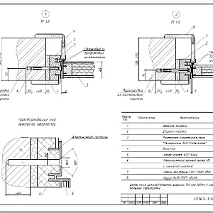
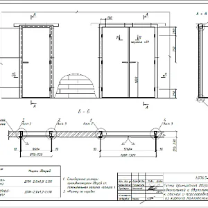
Выпущена новая типовая серия 1.036.5-3.17 "Двери межкомнатные интерьерные противопожарные "ЛД-Огнеспас" из древесины и древесных материалов для общественных зданий"

Нажмите для звонка
+7 495 471-13-36
(Приемная)
+7 495 961-25-17
(Проектный отдел)
Приемная
Проектный отдел
Отдел разработки ТПД